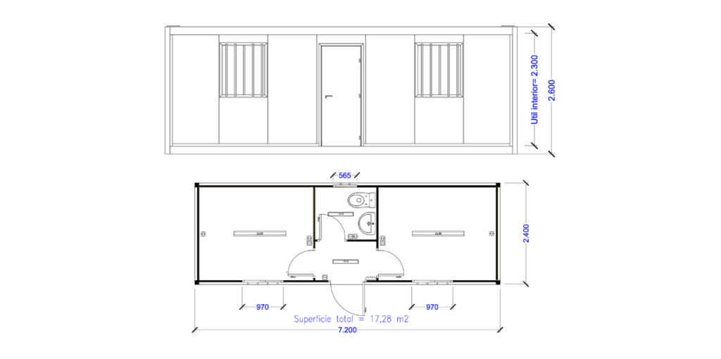
El módulo oficina con aseo OFAC77 consta de dos amplios despachos y un aseo completo, convirtiéndose en el módulo ideal para emplazamientos con limitación de espacio donde se precise de dos despachos independientes.

Disponible para alquiler y venta
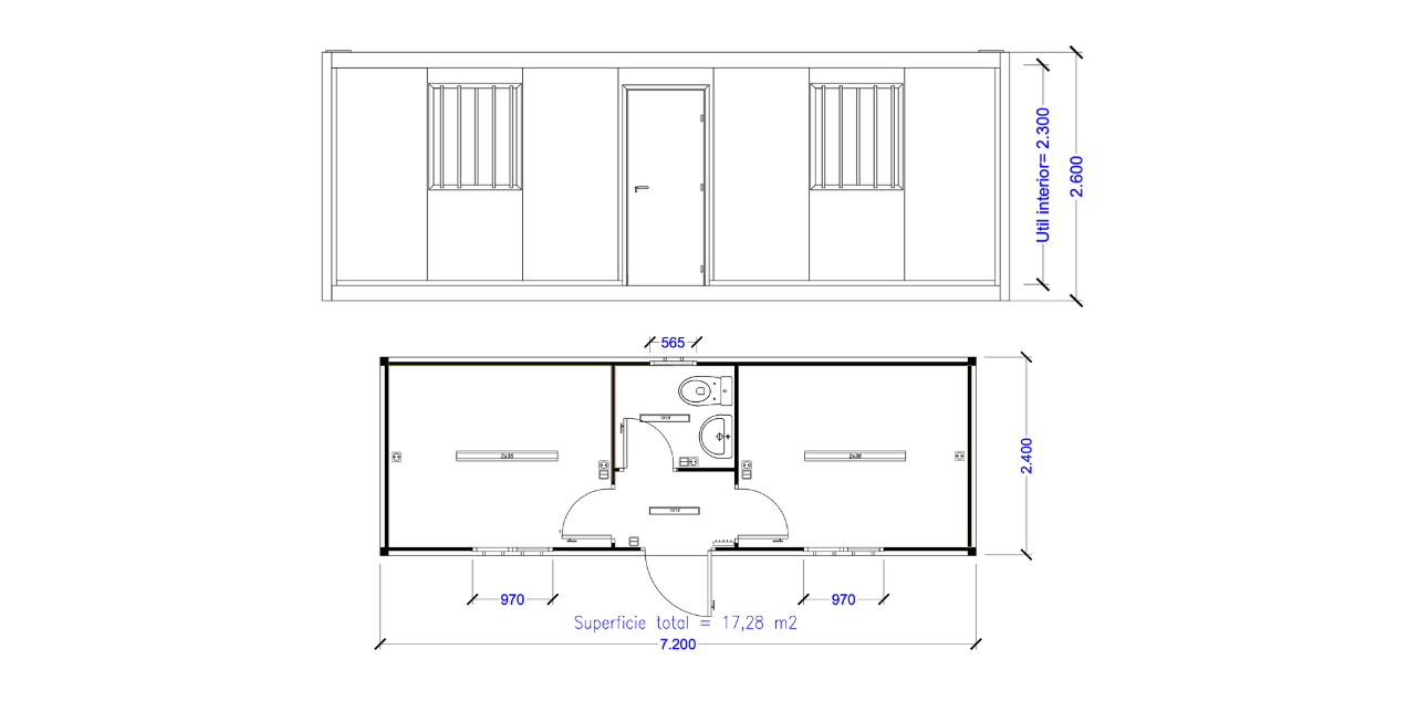
El módulo oficina con aseo OFAC77 consta de dos amplios despachos y un aseo completo, convirtiéndose en el módulo ideal para emplazamientos con limitación de espacio donde se precise de dos despachos independientes.