Viviendas prefabricadas: Rápidas, económicas y sostenibles
Si buscas una casa prefabricada de calidad, lista en pocos días y con un precio más accesible que una construcción tradicional, estás en el lugar adecuado. En Zarca, ofrecemos viviendas con contenedores diseñadas para adaptarse a tus necesidades, con materiales de alto rendimiento y acabados modernos.
¿Por qué elegir una vivienda prefabricada?
Las casas con contenedores marítimos son una alternativa moderna y eficiente a la construcción tradicional. Al estar fabricadas con módulos resistentes, permiten obtener una vivienda lista en poco tiempo y con un coste mucho más bajo.
Además, están diseñadas con materiales que garantizan un excelente aislamiento térmico y acústico, ofreciendo confort y eficiencia energética.
Menos consumo, más sostenibilidad y mayor durabilidad.
Características de nuestras viviendas prefabricadas
Además de su eficiencia y sostenibilidad, nuestras viviendas prefabricadas destacan por su diseño versátil y funcional. Cada modelo ha sido pensado para maximizar el espacio y la comodidad, ofreciendo una solución moderna, asequible y adaptable. Con una estructura resistente y materiales de alta calidad, estas casas están preparadas para garantizar una larga durabilidad y un óptimo rendimiento térmico.
- Más económicas que una construcción tradicional.
- Diseño compacto y eficiente para cualquier entorno.
- No requieren permisos de obra en la mayoría de los casos.
- Estructura robusta y resistente a diferentes condiciones climáticas.
- Materiales aislantes que garantizan un ambiente confortable.
- Opciones de personalización en acabados y distribución.
Cada vivienda incluye
- Salón comedor amplio y funcional.
- Cocina con espacio de almacenamiento.
- Baño completo.
- Dormitorio doble con distribución optimizada.
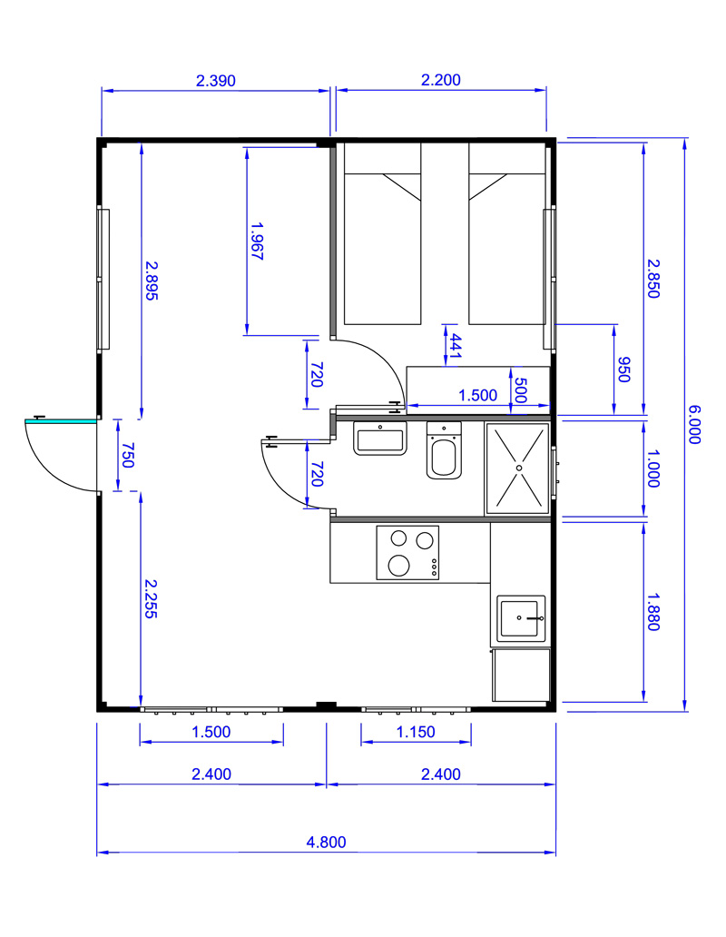
Tamaño estándar
4,8m x 6,0m (28,8m²), con posibilidad de ampliaciones o configuraciones personalizadas según las necesidades del cliente.
Fotos de casas prefabricadas
Plano de nuestras viviendas modulares prefabricadas
Preguntas Frecuentes
¿Necesito permisos para instalar una vivienda prefabricada?
En muchos casos, no es necesario un permiso de obra para instalar una casa prefabricada con contenedores. Sin embargo, la normativa varía según la localidad, por lo que es recomendable consultar con el ayuntamiento o entidad correspondiente.
Al tratarse de viviendas modulares y no de construcciones tradicionales, en muchos municipios se consideran estructuras temporales, lo que facilita su instalación sin trámites complejos. Si tienes dudas, nuestro equipo puede orientarte sobre los pasos a seguir según tu ubicación.
¿Cuánto tiempo tarda en estar lista una casa prefabricada?
Las casas prefabricadas modulares son una opción rápida y eficiente. Dependiendo del modelo y las opciones de personalización, el proceso puede durar desde unos pocos días hasta algunas semanas.
La gran ventaja de este tipo de viviendas prefabricadas es que su fabricación y ensamblaje se realizan en un entorno controlado, evitando retrasos por condiciones climáticas o imprevistos comunes en la construcción tradicional.
¿Puedo personalizar mi casa prefabricada?
Sí, en Zarca ofrecemos diferentes opciones de personalización para que adaptes tu casa prefabricada a tus necesidades. Puedes elegir entre distintos acabados, distribución interior, materiales y características adicionales.
Además, es posible incorporar elementos como aislamiento térmico mejorado, ventanas de mayor eficiencia energética, acabados en madera o metal, entre otros. Esto permite crear un espacio único, combinando el diseño moderno con la funcionalidad de las casas con contenedores marítimos.
¿Las casas prefabricadas son resistentes a las condiciones climáticas?
Sí, las viviendas con contenedores están diseñadas para soportar diferentes condiciones climáticas, incluyendo temperaturas extremas, humedad y vientos fuertes. Gracias a su estructura metálica reforzada y a los materiales aislantes utilizados, ofrecen gran estabilidad y confort en cualquier entorno.
Además, estas casas prefabricadas modulares pueden instalarse en terrenos urbanos o rurales, ya que su diseño compacto y su base estructural permiten una gran adaptabilidad.
¿Se pueden ampliar las casas prefabricadas en el futuro?
Sí, una de las ventajas de las casas prefabricadas con contenedores es que son modulares, lo que significa que puedes ampliar tu vivienda en el futuro añadiendo más módulos.
Esto te permite empezar con una casa prefabricada pequeña y funcional, y, a medida que tus necesidades cambien, agregar nuevas áreas como dormitorios adicionales, un estudio o una terraza.
¿Quieres tu casa prefabricada al mejor precio?
Completa el formulario y uno de nuestros asesores se pondrá en contacto contigo para ofrecerte asesoramiento personalizado.
Cuéntanos qué tipo de módulo prefabricado o caseta de obra necesitas, y prepararemos un presupuesto a tu medida.
Conoce cómo podemos ayudarte a optimizar costes, acortar plazos y garantizar un espacio cómodo y funcional para tu negocio u obra.
